Lütow OT Neuendorf:
nahe Zinnowitz: bis zu 10 DHH, neu erschlossene Baugrundstücke
Objekt-Nr.: 297

Seitenansicht Bestand und erschlossene Grundstücke

hintere Grundstücke mit Erschließungsstraße

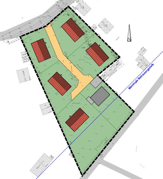
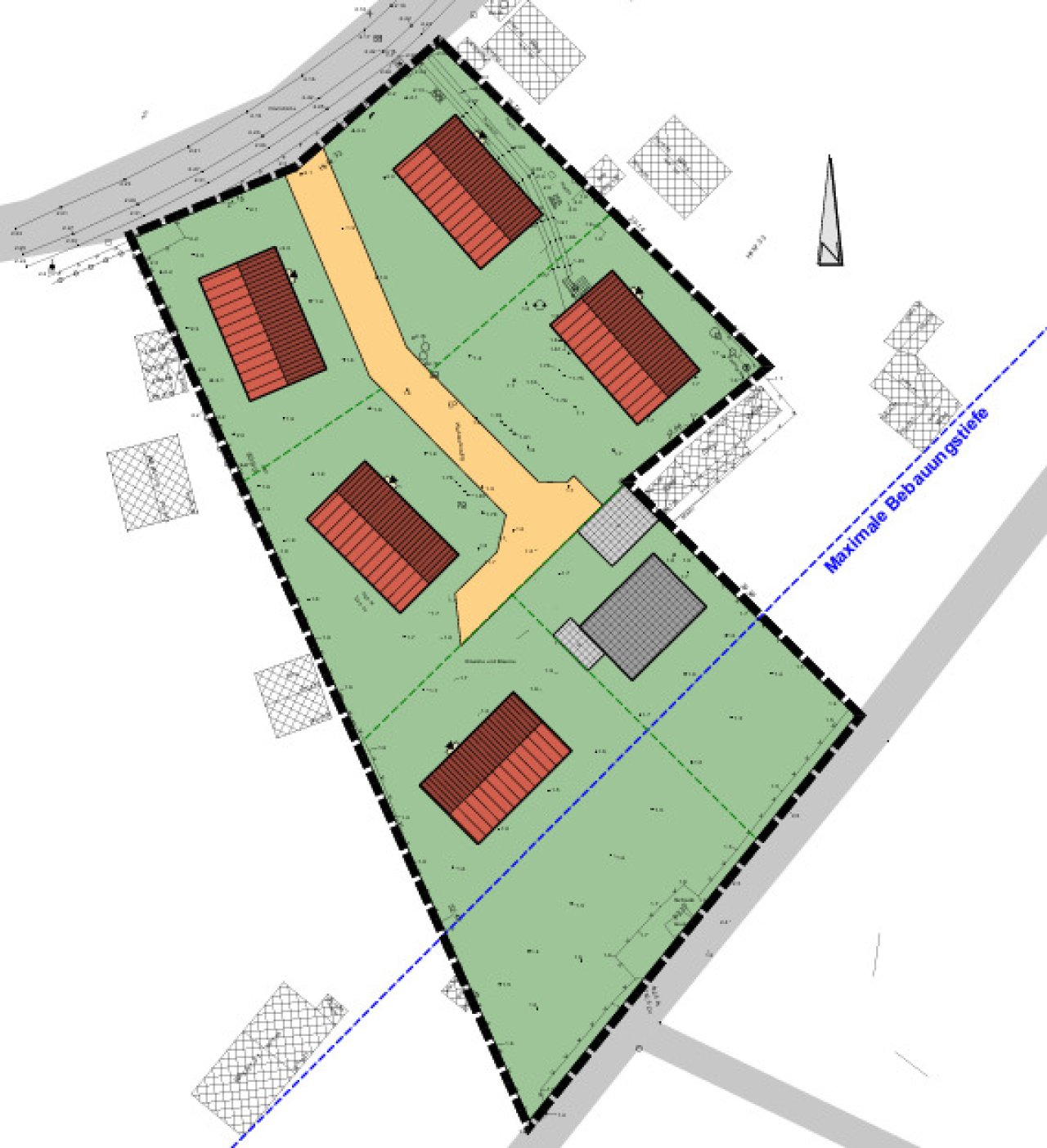
Lütow Plan 10 DHH

Ansicht Bestandsgebäude mit Blick zu Wasser

sofort verfügbare Baugrundstücke nahe Zinnowitz





Grundstück ca.:
4.418 m²
Preis:
1.200.000 €
Vollständig neu erschlossene Baugrundstücke.
Die Grundstücke sind gemäß Bauvoranfrage bebaubar.
Alle erforderlichen Anschlusspunkte für die technische Versorgung der Häuser liegen am Grundstück an.
(Strom, Wasser, Abwasser, Telekom).
Die Hausversorgung kann daran angeschlossen werden.
Die Erschließungskosten sind im Kaufpreis enthalten.
Kaufpreis: VB
Bebaubar nach § 34 BauGB, Grundlage positiver Bauvorbescheid
Die private Erschließungsstraße, Flurstück 12/55, 404 m² Fläche, wird Gemeinschaftseigentum. Sie wird anteilig mit 1/6 zu jeder Bauparzelle mitverkauft und ist im Kaufpreis inbegriffen. Damit ist auch eine Belastung durch Fremdverkehr ausgeschlossen und Wohnen in paradiesischer Ruhe möglich.
Die unbebauten Grundstücke (1 Grundstück ist bereits verkauft, Baubeginn war im Juni) können gemäß einer Bauvoranfrage jeweils mit einem EFH oder zwei Doppelhaushälften bebaut werden. Die bebaubare Grundfläche pro Einzelhaus beträgt 160 m², oder pro DHH 80 m² und lässt eine Bebauung mit einer Bauhöhe von 10 Metern (EG plus DG) und zwei Wohnungen zu. Individuelle Weiterentwicklungen der Bebauung sind in Abstimmung mit dem zuständigen Bauamt möglich.
Die Grundstücke mit den sanierungsbedürftigen Bestandsgebäuden können individuell genutzt oder auch umgeplant werden.
Alle Kaufpreise verhandelbar!
Nutzungsart: Wohnen
Erschliessung: erschlossen
Bebaubar nach: Nachbarbebauung
Empfohlene Nutzung: Einfamilienhaus, Mehrfamilienhaus
Teilbar ab: 604 m²
Umgebung: ruhige Gegend
Provisionspflichtig: nein
Das könnte Ihnen auch gefallen
Dorfstraße 32
17440 Lütow OT Neuendorf
Ostvorpommern
Mecklenburg-Vorpommern
















