Lütow OT Neuendorf:
voll erschlossenes Baugrundstück für DHH nahe Zinnowitz
Objekt-Nr.: 298

voll erschlossene Grundstücke nahe Zinnowitz

2023-07-25 Lütow (33)

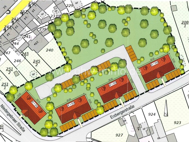
Lütow Plan 10 DHH

2023-07-25 Lütow (4)

2023-07-25 Lütow (27)





Grundstück ca.:
302 m²
Preis:
82.000 €
Ihr Wohngrundstück in ruhiger Gegend und dennoch nahe dem Strand vom Seebad Zinnowitz. Kurzfristig bebaubar.
Für dieses 302 m² große Grundstücke wäre laut Bauvoranfrage eine Doppelhaushälfte mit ca. 120 m² Wohnfläche denkbar.
Alle erforderlichen Anschlusspunkte für die technische Versorgung der Häuser liegen auf dem Grundstück an.
(Strom, Wasser, Abwasser, Telekom).
Die Hausversorgung kann daran angeschlossen werden. Durch den Erwerber sind lediglich die Hausanschlusskosten zu tragen.
Die Erschließungskosten sind im Kaufpreis enthalten.…
Auf dem Gesamtgrundstück können 5 Doppelhäuser (bis zu 10 Doppelhaushälften) errichtet werden. Einzelverkauf oder gesamt möglich. Preise entsprechend den Grundstücksgrößen.
Kaufpreis: VB
Bebaubar nach § 34 BauGB, Grundlage positiver Bauvorbescheid
Die private Erschließungsstraße, Flurstück 12/55, 404 m² Fläche, wird Gemeinschaftseigentum. Sie wird anteilig mit 1/6 zu jeder Bauparzelle mitverkauft und ist im Kaufpreis inbegriffen. Damit ist auch eine Belastung durch Fremdverkehr ausgeschlossen und Wohnen in paradiesischer Ruhe möglich.
Die unbebauten Grundstücke (1 Grundstück ist bereits verkauft, Baubeginn war im Juni) können gemäß einer Bauvoranfrage jeweils mit einem EFH oder zwei Doppelhaushälften bebaut werden. Die bebaubare Grundfläche pro Einzelhaus beträgt 160 m², oder pro DHH 80 m² und lässt eine Bebauung mit einer Bauhöhe von 10 Metern (EG plus DG) und zwei Wohnungen zu. Individuelle Weiterentwicklungen der Bebauung sind in Abstimmung mit dem zuständigen Bauamt möglich.
Die Grundstücke mit den sanierungsbedürftigen Bestandsgebäuden können individuell genutzt oder auch umgeplant werden.
Alle Kaufpreise verhandelbar!
Die Baugrundstücke liegen auf der Insel Usedom, Halbinsel Gnitz, und dort in der Gemeinde Lütow, OT Neuendorf, Dorfstraße 32.
Die Halbinsel Gnitz ist umgeben vom Achterwasser. Vom Grundstück aus können Sie den naheliegenden Yachthafen am Peenestrom in ca. 1,5 km erreichen. Von dort gelangen Sie durch Wolgast direkt in die Ostsee. An der Südspitze der Halbinsel finden Sie unterhalb der Steilküste nach ca. 4 km Radtour auch einen wilden Naturstrand der zum Baden einlädt. Zum Zentrum und zum Ostseestrand „Ostseebad Zinnowitz“ sind es rund 6,5 km. Neuendorf, mit schönen alten Bauernhäusern und vielen Neubauten, idyllisch umgeben von Wiesen
und Feldern, war einst der Hauptort auf der Halbinsel Gnitz, der Ruhe, Erholung, Wandern, Radfahren und viele andere stressfreie Annehmlichkeiten bietet.
Nutzungsart: Wohnen
Erschliessung: erschlossen
Bebaubar nach: Nachbarbebauung
Empfohlene Nutzung: Doppelhaus, Einfamilienhaus
Verfügbar ab: sofort
Umgebung: ruhige Gegend
Provisionspflichtig: nein
Das könnte Ihnen auch gefallen
Dorfstraße 32
17440 Lütow OT Neuendorf
Ostvorpommern
Mecklenburg-Vorpommern










