Lütow OT Neuendorf:
Neuendorf: voll erschlossenes Grundstück nahe Zinnowitz Flurstück 12/60
Objekt-Nr.: 209

2023-07-25 Lütow (23)

54-55-60-58-59

54-55-60-56-57-58



Grundstück ca.:
718 m²
Preis:
179.500 €
unbebautes Grundstück, voll erschlossen
Flurstück: 12/60
Kaufpreis verhandelbar.
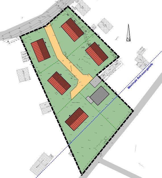
Auf der Insel Usedom, Halbinsel Gnitz, und in der Gemeinde Lütow, OT Neuendorf, Dorfstraße 32, erwarten Sie vollständig neu erschlossene Baugrundstücke sowie auch zwei Bestandsobjekte zur Sanierung und zum Umbau oder auch zur Neubebauung.
Die Halbinsel Gnitz ist umgeben vom Achterwasser. Vom Grundstück aus können Sie den naheliegenden Yachthafen am Peenestrom in ca. 1,5 km erreichen. Von dort gelangen Sie über Wolgast direkt in die Ostsee. An der Südspitze der Halbinsel finden Sie unterhalb der Steilküste nach ca.…
4 km Radtour auch einen wilden Naturstrand der zum Baden einlädt.
Zum Zentrum und zum Ostseestrand „Ostseebad Zinnowitz“ sind es rund 6,5 km.
Neuendorf mit schönen alten Bauernhäusern und vielen Neubauten, idyllisch umgeben von Wiesen und Feldern, war einst der Hauptort auf der Halbinsel Gnitz, der Ruhe, Erholung, Wandern, Radfahren und viele andere stressfreie Annehmlichkeiten bietet (siehe auch im Internet www.gnitz).
Die Grundstücke sind über eine Privatstraße erreichbar, die anteilig mit den jeweiligen Bauparzellen als Gemeinschaftseigentum mit verkauft wird. Damit ist eine Belastung durch Fremdverkehr ausgeschlossen und eine Bebauung in paradiesischer Ruhe möglich. Alle erforderlichen Anschlusspunkte für die technischen Versorgungsanschlüsse der Häuser liegen am jeweiligen Grundstück an.
Die 4 unbebauten Grundstücke (1 Grundstück ist bereits verkauft, Baubeginn im Juni) können gemäß einer Bauvoranfrage jeweils mit einem EFH oder zwei Doppelhaushälften bebaut werden. Die bebaubare Grundfläche pro Einzelhaus beträgt 160 m² und lässt eine Bebauung mit einer Bauhöhe von 10 Metern (EG plus DG) oder zwei Wohnungen zu. Individuelle Weiterentwicklungen der Bebauung dürften in Abstimmung mit dem zuständigen Bauamt möglich sein.
Die Grundstücke mit den sanierungsbedürftigen Bestandsgebäuden können individuell genutzt oder auch umgeplant werden. Aktuell ist eine Planung zum Umbau in vier und zwei Wohnungen erfolgt. Die Planungen sind bauantragsreif. Nach Abstimmung mit dem zuständigen Förderinstitut besteht die Möglichkeit, dafür Fördermittel für die energetische Sanierung zu erlangen.
Das Angebot eignet sich sowohl als interessante und lohnenswerte Bauträgermaßnahme als auch zur individuellen Bebauung.
Nutzungsart: Wohnen
Erschliessung: erschlossen
Bebaubar nach: Bauland ohne Bebauungsplan
Provisionspflichtig: nein
Die von uns gemachten Informationen beruhen auf Angaben des Verkäufers bzw. der Verkäuferin. Für die Richtigkeit und Vollständigkeit der Angaben kann keine Gewähr bzw. Haftung übernommen werden. Ein Zwischenverkauf und Irrtümer sind vorbehalten.
Wir weisen auf unsere Allgemeinen Geschäftsbedingungen hin. Durch weitere Inanspruchnahme unserer Leistungen erklären Sie die Kenntnis und Ihr Einverständnis.
Das könnte Ihnen auch gefallen
Dorfstraße 32
17440 Lütow OT Neuendorf
Ostvorpommern
Mecklenburg-Vorpommern










