Lütow OT Neuendorf:
voll erschlossenes Grundstück nahe Zinnowitz auf der Insel Usedom - Flurstück 12/54
Objekt-Nr.: 210

2023-07-25 Lütow (7)

54-55-60-58-59

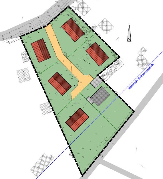
Lütow Plan 10 DHH

2023-07-25 Lütow (23)




Grundstück ca.:
604 m²
Preis:
151.000 €
Flurstück 12/54 mit 604 m² Kaufpreis verhandelbar.
Die 4 unbebauten Grundstücke (1 Grundstück ist bereits verkauft, Baubeginn im Juni) können gemäß einer Bauvoranfrage jeweils mit einem EFH oder zwei Doppelhaushälften bebaut werden. Die bebaubare Grundfläche pro Einzelhaus beträgt 160 m² und lässt eine Bebauung mit einer Bauhöhe von 10 Metern (EG plus DG) oder zwei Wohnungen zu. Individuelle Weiterentwicklungen der Bebauung dürften in Abstimmung mit dem zuständigen Bauamt möglich sein.
Das Angebot eignet sich sowohl als interessante und lohnenswerte Bauträgermaßnahme als auch zur individuellen Bebauung.
Die Grundstücke sind über eine Privatstraße erreichbar, die anteilig mit den jeweiligen Bauparzellen als Gemeinschaftseigentum mit verkauft wird. Damit ist eine Belastung durch Fremdverkehr ausgeschlossen und eine Bebauung in paradiesischer Ruhe möglich.
Alle erforderlichen Anschlusspunkte für die technischen Versorgungsanschlüsse der Häuser liegen am jeweiligen Grundstück an.
Nutzungsart: Wohnen
Erschliessung: erschlossen
Bebaubar nach: Bauland ohne Bebauungsplan
Provisionspflichtig: nein
Die von uns gemachten Informationen beruhen auf Angaben des Verkäufers bzw. der Verkäuferin. Für die Richtigkeit und Vollständigkeit der Angaben kann keine Gewähr bzw. Haftung übernommen werden. Ein Zwischenverkauf und Irrtümer sind vorbehalten.
Wir weisen auf unsere Allgemeinen Geschäftsbedingungen hin. Durch weitere Inanspruchnahme unserer Leistungen erklären Sie die Kenntnis und Ihr Einverständnis.
Das könnte Ihnen auch gefallen
Dorfstraße 32
17440 Lütow OT Neuendorf
Ostvorpommern
Mecklenburg-Vorpommern












